Floor Plans
- Our Custom Floor Plans
- Bring Your Own Plans
- Our Available Homes
About Us
- Our Story
- Our Mission
- Trade Partners
- FAQ's
- Custom Home Process
- Financing
Our Locations
– Beaumont, TX (CAM)
– College Station, TX (WGR)
– Canton, TX (SWH)
– Corpus Christi, TX (SWH)
– San Antonio, TX (SWH)
– Portland, TX (SWH)
– Springdale, AR (SWH)
Contact Us
- Refer A Friend
- Become A Trade Partner
- Careers
Blog
*Plan may show available options & upgrades.
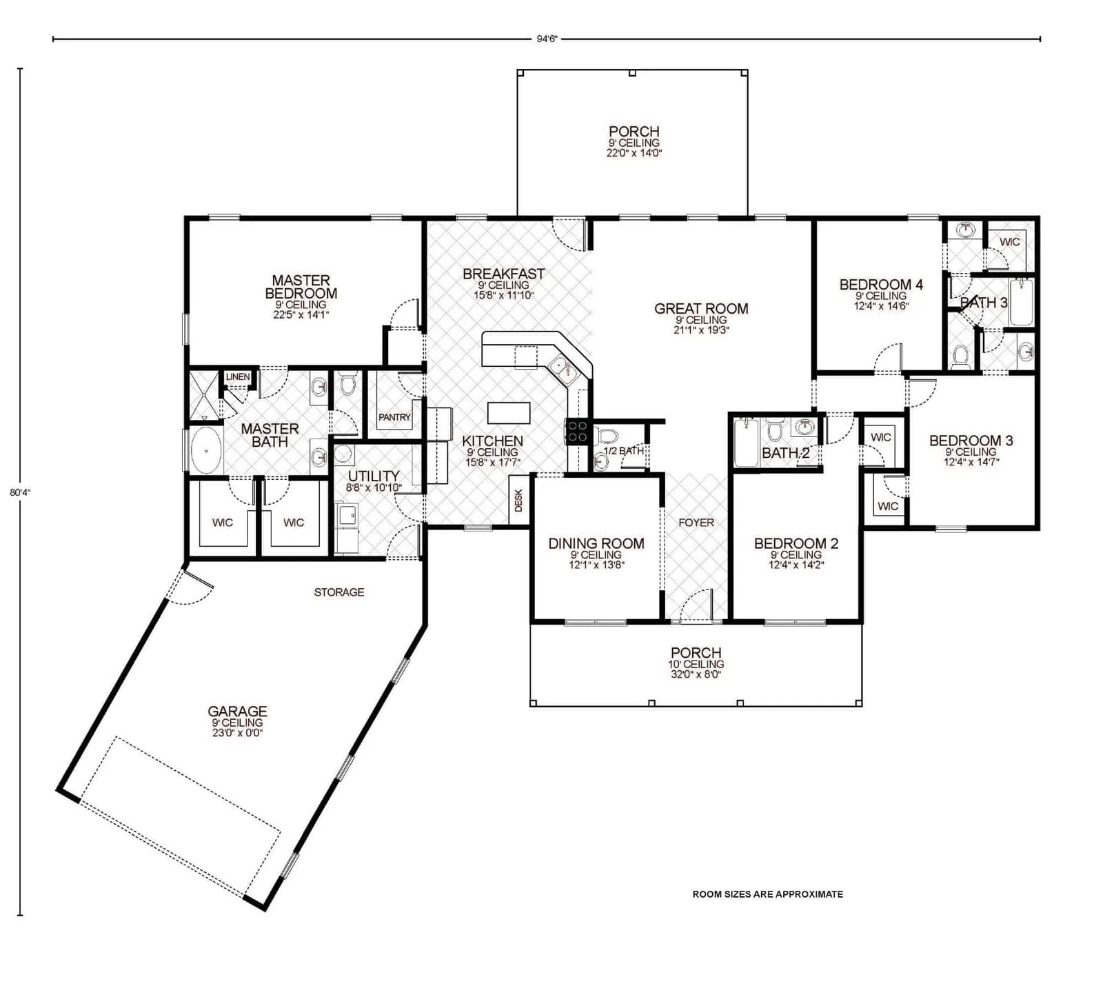
This exquisite floor plan presents an inviting design that balances open spaces with private retreats, perfect for those looking to build a custom home that’s both luxurious and practical. The heart of the home is the spacious great room with soaring ceilings, providing the ideal backdrop for entertaining or relaxing family time.
The adjacent chef’s kitchen, featuring an expansive island and walk-in pantry, flows seamlessly into a charming breakfast nook, creating a warm space for morning coffee and casual dining. The formal dining room nearby offers a perfect setting for hosting dinner parties or enjoying family meals.
The master suite is a true sanctuary, boasting a generous bedroom with ample space for a king-size bed and sitting area, a spa-like master bath with dual vanities, a soaking tub, a separate shower, and a vast walk-in closet. Across the home, three additional bedrooms each feature their own walk-in closets and share two well-appointed full baths.
Additional features include a large utility room with plenty of storage, a welcoming foyer that makes a grand first impression, and a trio of porches—including a serene back porch—perfect for outdoor living and soaking in the surroundings of your custom home. The attached garage also provides ample space for vehicles and hobbies.
This floor plan offers approximately 2,816 square feet of living area, a 723 square foot garage, and porches totaling 564 square feet, culminating in a home that’s as spacious as it is sophisticated. With every detail thoughtfully considered, this layout is ready to be transformed into your dream residence.
Get 0% down + No Payment Until Completion
*With Approved Credit
Save On Upgrades
Receive $5,000 in Options & Upgrades
Plus: $0 Down + No Payment During Construction
*WAC
Receive $5,000 in Options & Upgrades
Plus: $0 Down + No Payment During Construction
*WAC
Save On Upgrades