Floor Plans
- Our Custom Floor Plans
- Bring Your Own Plans
- Our Available Homes
About Us
- Our Story
- Our Mission
- Trade Partners
- FAQ's
- Custom Home Process
- Financing
Our Locations
– Beaumont, TX (CAM)
– College Station, TX (WGR)
– Canton, TX (SWH)
– Corpus Christi, TX (SWH)
– San Antonio, TX (SWH)
– Portland, TX (SWH)
– Springdale, AR (SWH)
Contact Us
- Refer A Friend
- Become A Trade Partner
- Careers
Blog
*Plan may show available options & upgrades.
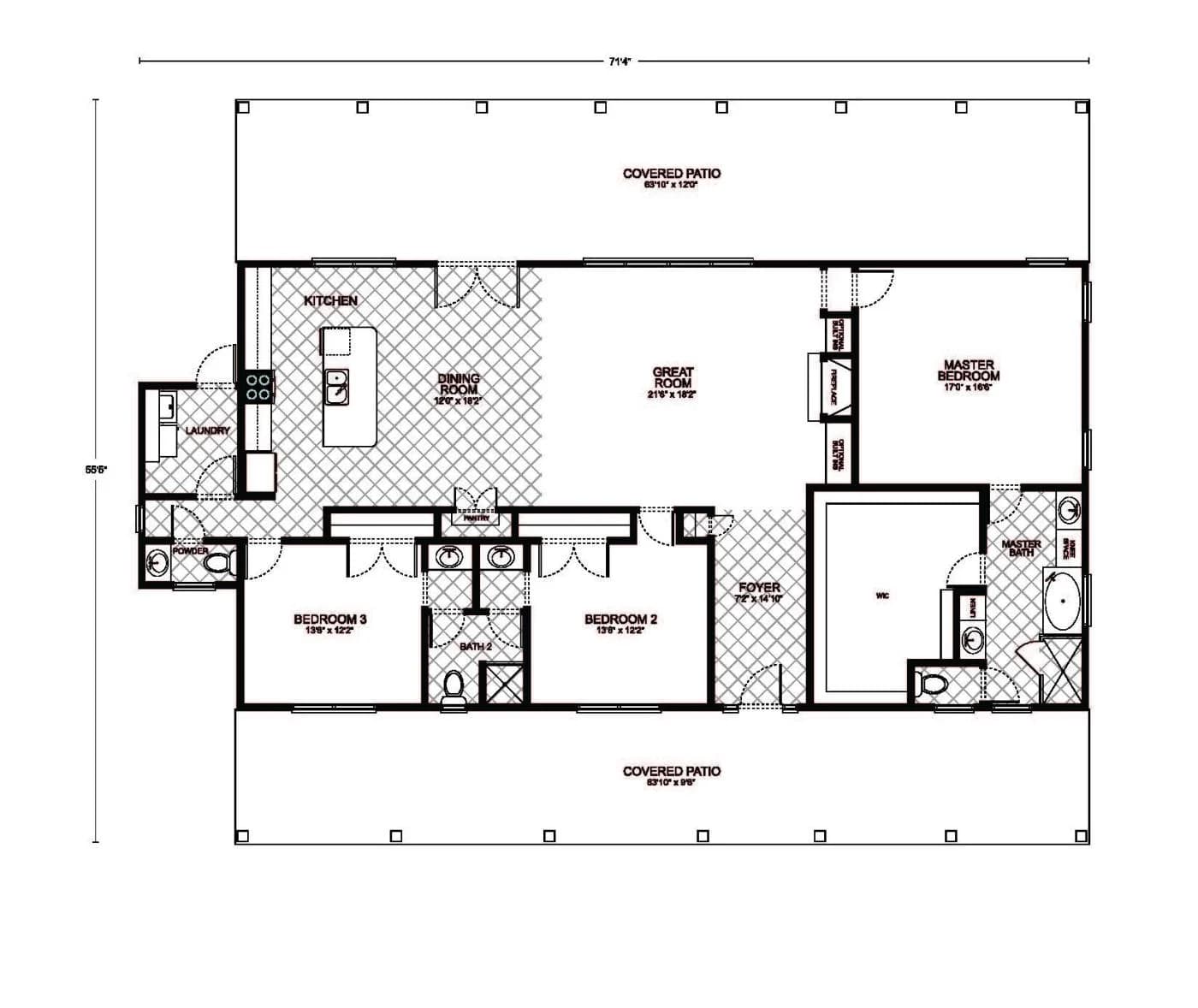
Immerse yourself in the contemporary elegance of this floor plan, designed for those who cherish both comfort and style in their custom home. As you approach, a stately covered patio welcomes you into a home that promises both tranquility and social engagement.
Upon entering, the foyer leads you into a grand great room, an embodiment of open-concept living with ample space for relaxing and hosting gatherings. The great room extends into a sleek kitchen featuring a central island that is both a culinary workspace and a casual dining spot. The adjacent dining room offers a scenic view of the outdoors, ideal for formal and everyday meals.
The master suite is a private sanctuary tucked away for solitude and rest, complete with a sizable bedroom, a luxurious en-suite bath with a dual vanity, and a generous walk-in closet. Two additional bedrooms, located on the opposite side of the home, provide quiet retreats for family or guests. Each room boasts ample closet space and easy access to a full bathroom, ensuring comfort and privacy.
For those who enjoy outdoor living, the layout includes not one, but two covered patios, perfect for alfresco dining, morning coffees, or simply enjoying the breeze on a lazy afternoon. The practical inclusion of a laundry room within the layout underscores the home’s blend of elegance and functionality.
Spanning approximately 2,204 square feet of living area with an additional 175 square feet dedicated to outdoor living, this floor plan is the canvas for a home that will be as inviting as it is impressive. Offering an ideal balance of shared spaces and private nooks, this home is tailored for a lifetime of memories.
Get 0% down + No Payment Until Completion
*With Approved Credit
Save On Upgrades
Receive $5,000 in Options & Upgrades
Plus: $0 Down + No Payment During Construction
*WAC
Receive $5,000 in Options & Upgrades
Plus: $0 Down + No Payment During Construction
*WAC
Save On Upgrades