

*Plan may show available options and upgrades. Click to zoom. Scroll to zoom. Drag to pan.
Your Custom Home Floor Plan
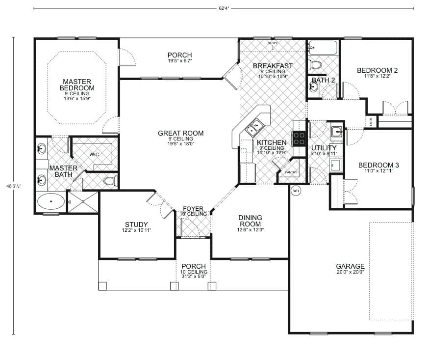
Driftwood B Floor Plan
3 Beds
2 Baths
1,853 Sq Ft
2 Cars
$0 Down - No Payments During Construction*
*With approved credit. No traditional construction loan required.
This captivating floor plan embodies a perfect blend of elegance and functionality, making it an exceptional choice for your custom-built home. The welcoming porch invites you into an airy foyer with a lofty ceiling, providing a grand entrance to your abode.
The heart of the home is the great room, where a 9-foot ceiling amplifies the spaciousness, creating an ideal gathering space for family and friends. It flows gracefully into the kitchen, which boasts modern appliances, a pantry for storage, and a central island that is perfect for meal prep and casual dining. The adjacent breakfast area, with its own ceiling detail, offers a cozy spot for morning coffee and informal meals.
For more formal occasions, the dining room is conveniently located to offer an elegant dining experience. A study, tucked away from the main living areas, provides a private space for work or leisure, making it versatile to suit your lifestyle needs.
The master bedroom is a tranquil retreat, featuring a 9-foot ceiling and a generous layout that accommodates a relaxing sitting area. It includes a well-appointed master bath with dual vanities, a large shower, and a walk-in closet, ensuring a serene start to the day. Two additional bedrooms offer comfortable spaces for family or guests, complete with easy access to a shared full bath.
The utility room is efficiently positioned to serve as a laundry and additional storage space, leading out to the two-car garage. With an expansive living area of 1,853 square feet and additional outdoor living space, this floor plan is thoughtfully designed to maximize both comfort and style, providing an idyllic canvas for your new home.
Living Area
1,853 sq ft
Bedrooms
3
Bathrooms
2
Stories
1
Cars
2
Speak To Your New Custom Home Builder Today!
25+
Years Experience
3,000+
Homes Built
5
Office Locations
A+
BBB Rating
Make It Yours
Customize the Driftwood B
Every floor plan is a starting point, not a box. Work directly with our design team to personalize every detail of the Driftwood B to fit your land, your family, and your lifestyle - at a price that's clear from day one.
Cabinet styles and finishes
Flooring throughout
Countertops and backsplashes
Exterior colors and materials
Structural layout changes
Fixtures and hardware
Ceiling treatments
Porch and outdoor living
How It Works
Build the Driftwood B in 5 Simple Steps
From free site evaluation to move-in day. One team, one price, one beautiful home.
01
Free Site Evaluation
We assess your land for build-readiness including soil, utilities, and access.
02
Choose Your Plan
Select the Driftwood B or customize it. Bring your own plan too.
03
Get Clear Pricing
Transparent pricing with no hidden fees or surprises.
04
Build Begins
Our experienced team breaks ground with one dedicated point of contact.
05
Move In
Walk through your finished dream home and start making memories.
Take the Next Step
Get Details for the Driftwood B
Tell us where you want to build and we'll match you with your local team.
Mortgage Calculator
*Estimate only. Does not include taxes and insurance. WAC.
$
$
%
Estimated Monthly Payment
$2,213/mo
Common Questions
Driftwood B Floor Plan FAQ
Yes. Every Southwest Homes floor plan is a starting point. Work directly with our design team to personalize cabinet finishes, flooring, countertops, fixtures, exterior colors, and structural options. We adapt the Driftwood B to fit your land, your family, and your lifestyle.
No - traditional construction loans require you to pay interest. We work with lenders who offer construction-to-permanent financing that simplifies this - often with $0 down and no payments and no interest until the build is complete. *WAC
Pricing depends on the floor plan, location, lot conditions, and customizations you choose. We provide transparent pricing with no hidden fees. Contact us for a personalized quote based on your specific plan and land.
Every home is different - the time frame changes from permit approval to move-in, depending on the plan size, site conditions, local permitting timelines, and even weather conditions. Your project manager will give you a specific schedule during the planning phase.
We typically serve a 100-mile radius around each of our offices in San Antonio, Corpus Christi, Canton TX, and Springdale AR. If you're unsure whether your land is in our service area, call your nearest office and we'll let you know right away.
Yes. Southwest Homes offers a Bring Your Own Plan option. If you have a design you love, our team can review it and provide pricing to build it on your land. Learn more about Bring Your Own Plan.
Ready to Build the Driftwood B on Your Land?
No construction loan required. Transparent pricing. Free site evaluation. 25+ years and 3,000+ homes built.



