Floor Plan

*Plan may show available options & upgrades.

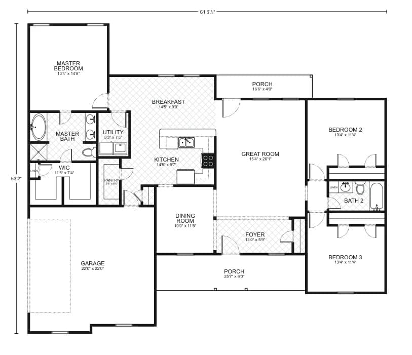
Elmwood - Custom Home Floor Plan

The Elmwood floor plan offers a harmonious blend of contemporary design and comfortable living, perfect for anyone looking to construct a custom home tailored to their needs. The expansive front porch leads into a welcoming foyer that transitions into a striking great room, the ideal space for both relaxation and hosting with its generous dimensions and flowing natural light.

The kitchen is thoughtfully laid out with efficiency in mind, featuring ample counter space, a pantry for storage, and a layout conducive to both cooking and socializing. It opens to a cozy breakfast nook, perfect for informal dining, while a more formal dining room provides the setting for special meals and occasions.

Retreat to the master bedroom, which promises solace with its sizeable layout, including a walk-in closet and a master bath designed as a personal oasis, complete with modern fixtures. Two additional bedrooms offer comfortable spaces for family or guests, each conveniently located near a well-appointed second full bath.

Practicality is also a key feature of the Elmwood, with a utility room smartly positioned to keep household management out of view. The attached garage provides ample space for vehicles and storage. With a total living area of 1,821 square feet, this floor plan is an exemplary choice for those seeking a home that is both inviting and functional, making it an ideal canvas for your dream home.

Mortgage Calculator

The calculated amount is an estimate, with the exact
loan terms determined on an individual basis.
Estimated calculated amount does not include taxes & insurance.
$ 200000
$ 150000
$ 750000
$
[downpayment]/[homeprice]*100
%
([homeprice]-[downpayment])*([interestrate]/100)/12/(1-Math.pow(1+([interestrate]/100)/12,-([loanterm]*12)))
$

Request More Information

Unlock "Build Now" Financing

Get 0% down + No Payment Until Completion
*With Approved Credit

$5,000

Save On Upgrades

LIMITED TIME OFFER - Sign up by 12/31/2025!

Receive $5,000 in Options & Upgrades
Plus: $0 Down + No Payment During Construction *WAC

LIMITED TIME OFFER
Sign up by 12/31/2025!

Receive $5,000 in Options & Upgrades
Plus: $0 Down + No Payment During Construction *WAC

$5,000

Save On Upgrades