
San Marcos C
4 Bed 2 Bath 1,360 sqft
View Plan

*Plan may show available options and upgrades. Click to zoom. Scroll to zoom. Drag to pan.
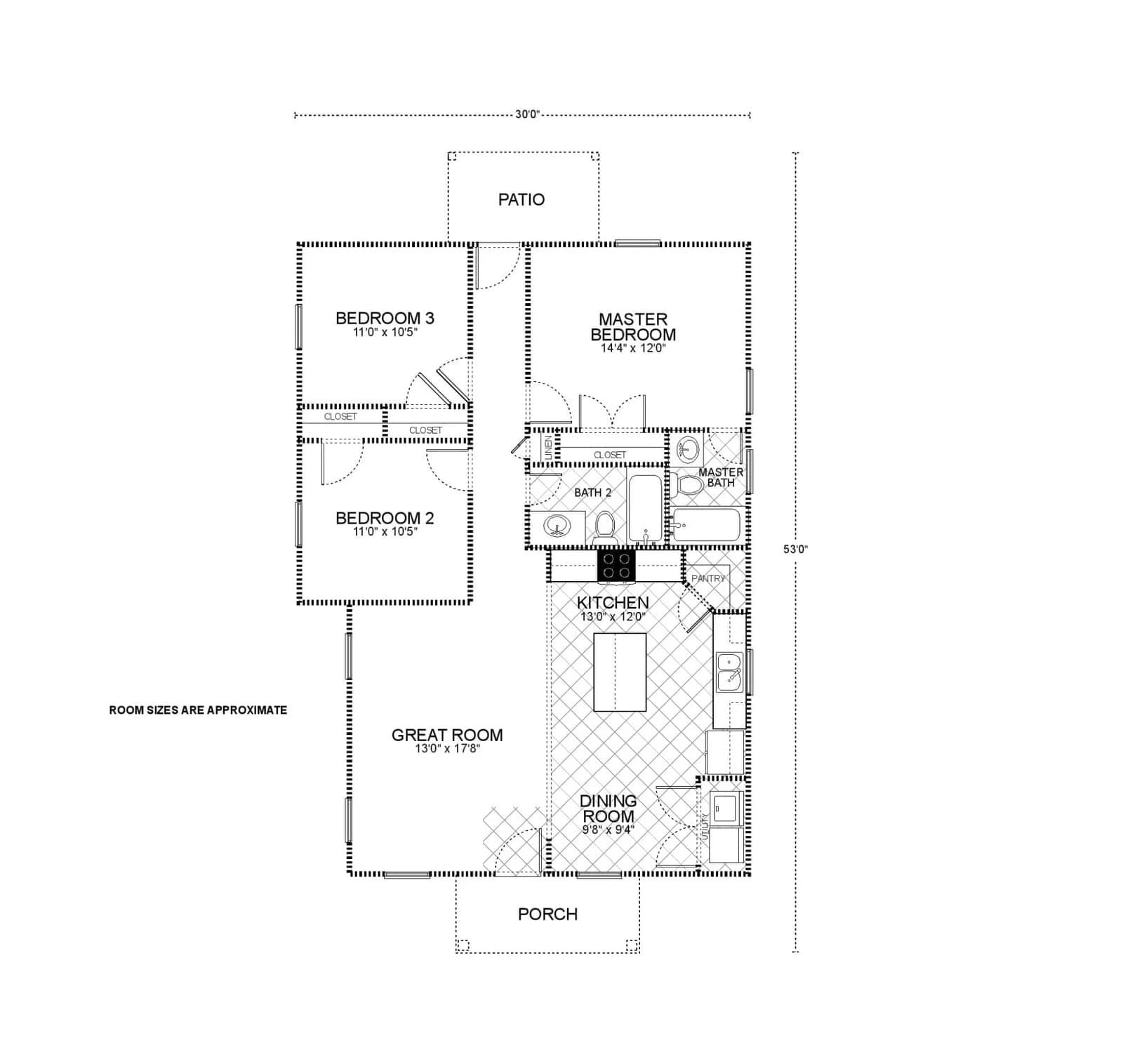
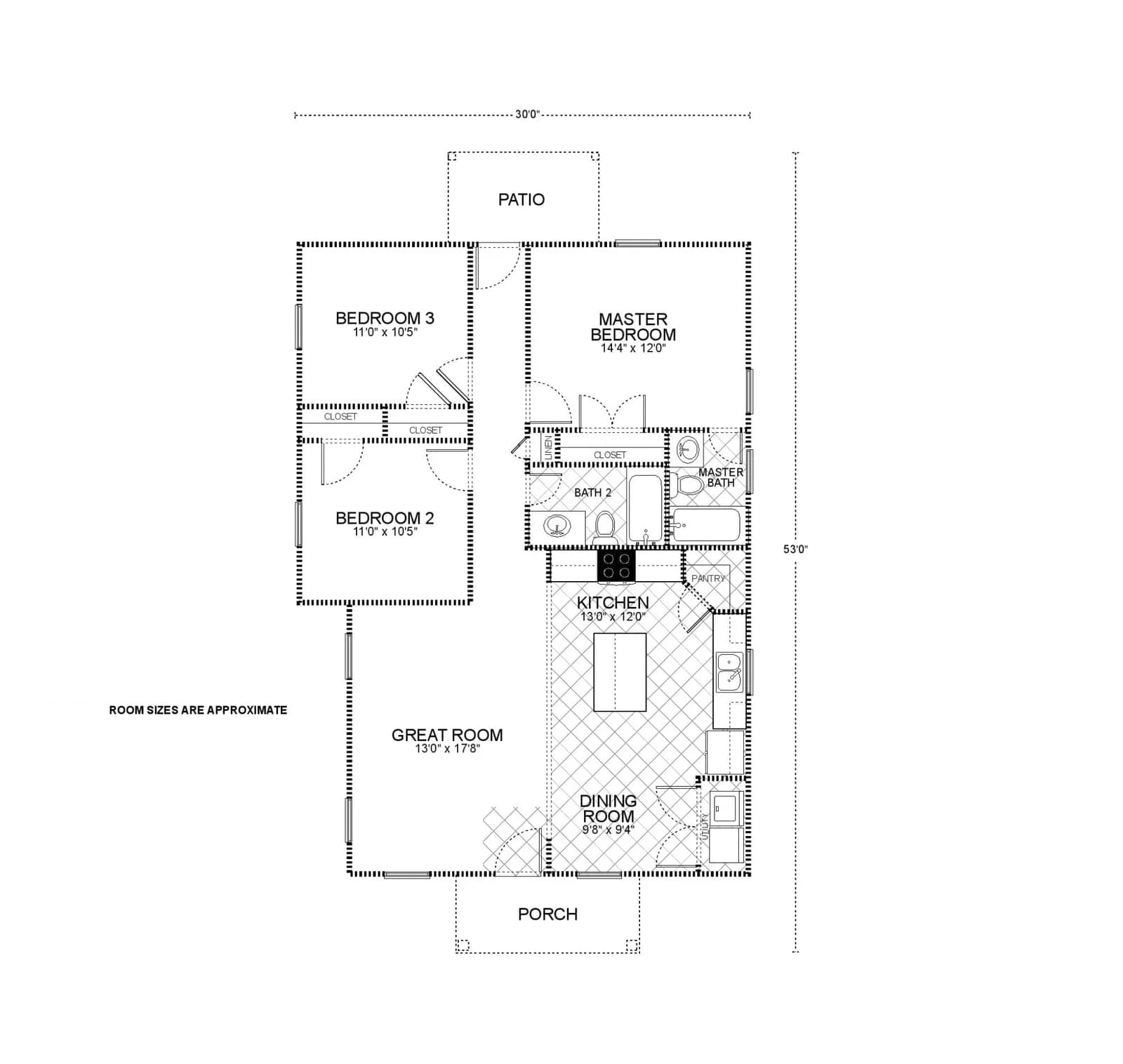
The Henderson floor plan is a well-appointed design, encompassing 1200 square feet of living space, carefully crafted to provide a comfortable and efficient home environment. This plan is an excellent choice for those seeking a harmonious blend of function and comfort.
Upon entering, the layout leads to a spacious great room, measuring 13’0″ x 17’8″, ideal for daily family life and for entertaining guests. The great room’s open concept flows into a practical dining area of 9’8″ x 9’4″, positioned conveniently next to the kitchen. The kitchen itself, sized at 13’0″ x 12’0″, features a smart layout that optimizes workspace and storage, making it perfect for culinary enthusiasts.
The master bedroom, with its dimensions of 14’4″ x 12’0″, offers a private and serene retreat, complete with an en suite bathroom, ensuring a comfortable and secluded space for relaxation. Two additional bedrooms, each 11’0″ x 10’5″, provide ample space for family or guests, and are supported by a second full bathroom, illustrating the home’s thoughtful consideration for both privacy and convenience.
This floor plan also includes a patio, which extends the living space outdoors and offers a delightful area for relaxation or social gatherings in the open air. With the inclusion of a porch and a patio, the total under-roof area comes to 1320 square feet, providing additional outdoor leisure space. The Henderson floor plan strikes a balance between open communal areas and intimate private spaces, ensuring that it will be a comfortable and inviting home.
Every floor plan is a starting point, not a box. Work directly with our design team to personalize every detail of the Henderson B to fit your land, your family, and your lifestyle - at a price that's clear from day one.
From free site evaluation to move-in day. One team, one price, one beautiful home.
We assess your land for build-readiness including soil, utilities, and access.
Select the Henderson B or customize it. Bring your own plan too.
Transparent pricing with no hidden fees or surprises.
Our experienced team breaks ground with one dedicated point of contact.
Walk through your finished dream home and start making memories.
Tell us where you want to build and we'll match you with your local team.
*Estimate only. Does not include taxes and insurance. WAC.
No construction loan required. Transparent pricing. Free site evaluation. 25+ years and 3,000+ homes built.
Fill out the form below and your local builder rep will send you full pricing and specs.