

*Plan may show available options and upgrades. Click to zoom. Scroll to zoom. Drag to pan.
Your Custom Home Floor Plan
Seymour A Floor Plan
4 Beds
2.5 Baths
2,538 Sq Ft
2 Cars
$0 Down - No Payments During Construction*
*With approved credit. No traditional construction loan required.
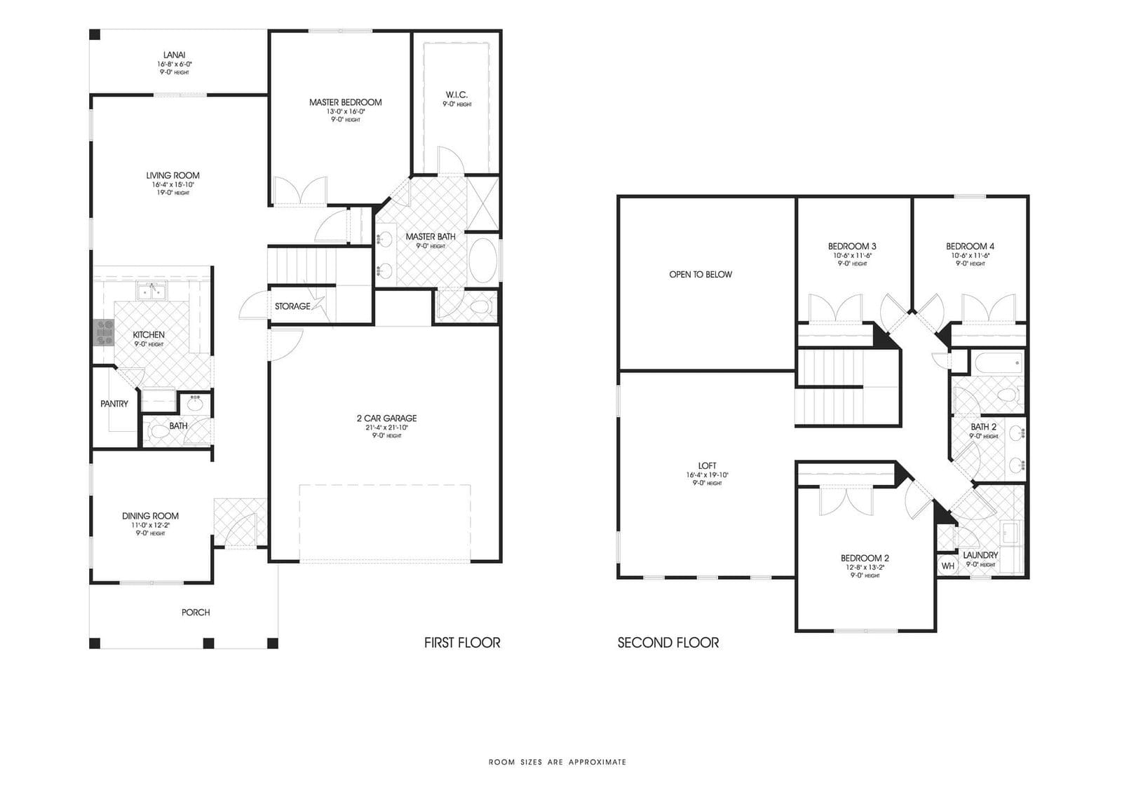
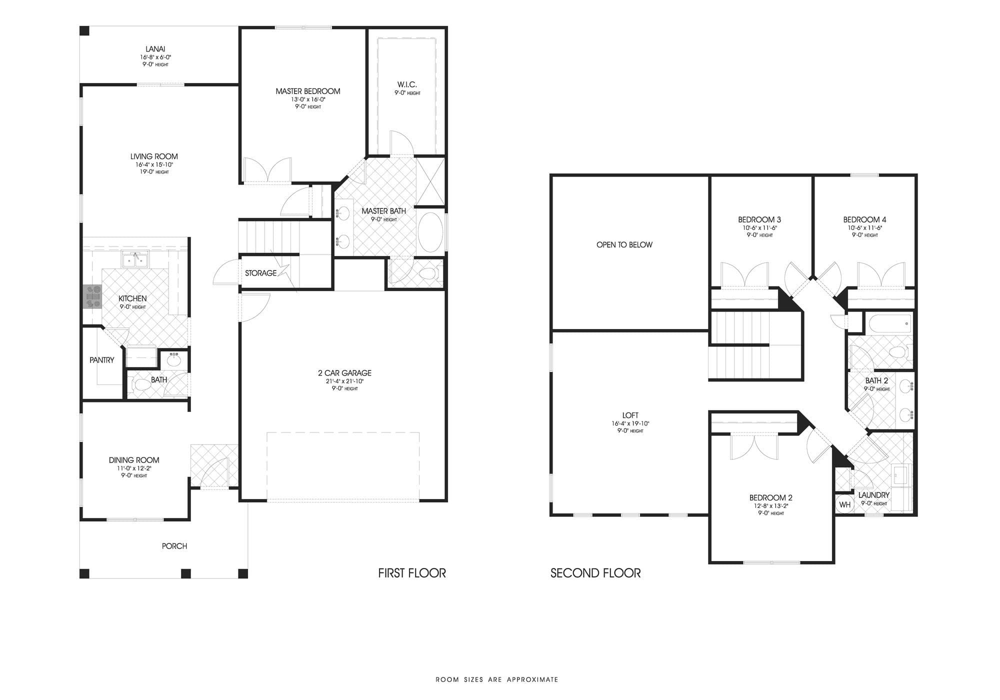
This Seymour-A floor plan represents a masterful combination of space and design, with a total living area of 2488 square feet, thoughtfully divided between two levels to maximize both privacy and communal living.
The first floor serves as the cornerstone of the home, featuring a sizable living room that sets the stage for relaxation and social engagement. The adjacent dining room, seamlessly connected to the kitchen, is perfect for both casual and formal dining experiences. The kitchen, complete with a pantry, is meticulously planned to optimize space and functionality, making cooking a pleasure. A full bath and additional storage round out the first-floor amenities.
The master suite, also located on the first floor, is a retreat unto itself, offering a spacious bedroom, a walk-in closet, and a master bath designed for comfort and serenity. The suite opens to a lanai, providing a private outdoor space to unwind.
As you ascend to the second floor, the layout includes three additional bedrooms, offering ample personal space for family or guests. A shared full bath ensures convenience and functionality. The loft, overlooking the living room, provides an open, flexible space for a family room, home office, or play area.
Completing this home is a practical two-car garage and substantial outdoor living spaces, including a porch and lanai, perfect for enjoying the outdoors and entertaining. With its intelligent design and comfortable living areas, the Seymour-A is an exceptional choice for those seeking a modern and spacious home that caters to both privacy and community.
Living Area
2,538 sq ft
Bedrooms
4
Bathrooms
2.5
Stories
2
Cars
2
Speak To Your New Custom Home Builder Today!
25+
Years Experience
3,000+
Homes Built
5
Office Locations
A+
BBB Rating
Make It Yours
Customize the Seymour A
Every floor plan is a starting point, not a box. Work directly with our design team to personalize every detail of the Seymour A to fit your land, your family, and your lifestyle - at a price that's clear from day one.
Cabinet styles and finishes
Flooring throughout
Countertops and backsplashes
Exterior colors and materials
Structural layout changes
Fixtures and hardware
Ceiling treatments
Porch and outdoor living
How It Works
Build the Seymour A in 5 Simple Steps
From free site evaluation to move-in day. One team, one price, one beautiful home.
01
Free Site Evaluation
We assess your land for build-readiness including soil, utilities, and access.
02
Choose Your Plan
Select the Seymour A or customize it. Bring your own plan too.
03
Get Clear Pricing
Transparent pricing with no hidden fees or surprises.
04
Build Begins
Our experienced team breaks ground with one dedicated point of contact.
05
Move In
Walk through your finished dream home and start making memories.
Take the Next Step
Get Details for the Seymour A
Tell us where you want to build and we'll match you with your local team.
Mortgage Calculator
*Estimate only. Does not include taxes and insurance. WAC.
$
$
%
Estimated Monthly Payment
$2,213/mo
Common Questions
Seymour A Floor Plan FAQ
Yes. Every Southwest Homes floor plan is a starting point. Work directly with our design team to personalize cabinet finishes, flooring, countertops, fixtures, exterior colors, and structural options. We adapt the Seymour A to fit your land, your family, and your lifestyle.
No - traditional construction loans require you to pay interest. We work with lenders who offer construction-to-permanent financing that simplifies this - often with $0 down and no payments and no interest until the build is complete. *WAC
Pricing depends on the floor plan, location, lot conditions, and customizations you choose. We provide transparent pricing with no hidden fees. Contact us for a personalized quote based on your specific plan and land.
Every home is different - the time frame changes from permit approval to move-in, depending on the plan size, site conditions, local permitting timelines, and even weather conditions. Your project manager will give you a specific schedule during the planning phase.
We typically serve a 100-mile radius around each of our offices in San Antonio, Corpus Christi, Canton TX, and Springdale AR. If you're unsure whether your land is in our service area, call your nearest office and we'll let you know right away.
Yes. Southwest Homes offers a Bring Your Own Plan option. If you have a design you love, our team can review it and provide pricing to build it on your land. Learn more about Bring Your Own Plan.
Ready to Build the Seymour A on Your Land?
No construction loan required. Transparent pricing. Free site evaluation. 25+ years and 3,000+ homes built.



