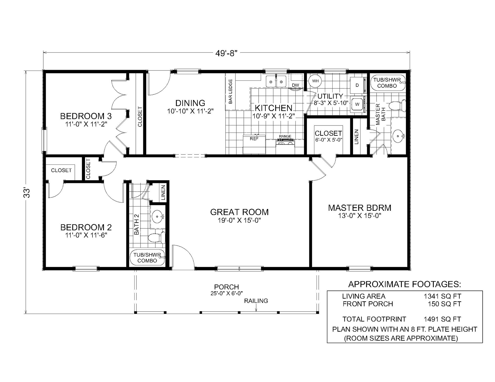
This thoughtfully designed floor plan offers a comfortable and efficient layout that blends open-concept living with well-defined private spaces, making it ideal for modern living on any homesite. The welcoming front porch leads into a spacious great room that serves as the central gathering space, perfect for everyday relaxation or entertaining guests. Its open flow creates a natural connection to the dining area and kitchen, enhancing both functionality and livability.
The kitchen is centrally positioned and designed for efficiency, featuring ample counter space, a convenient breakfast bar, and easy access to the adjacent dining area. A nearby utility room adds everyday practicality with space for laundry and additional storage, keeping household tasks neatly organized and out of sight.
The private master bedroom is thoughtfully separated from the secondary bedrooms, creating a peaceful retreat at the end of the day. It offers generous space for a full bedroom set and is complemented by a dedicated closet and an en-suite bath designed for comfort and convenience. Two additional bedrooms are located on the opposite side of the home, each offering comfortable dimensions and closet space, with easy access to a shared full bath.
Additional highlights include efficient storage throughout, a functional layout that maximizes every square foot, and a covered front porch that enhances curb appeal while providing a welcoming outdoor space. With approximately 1,341 square feet of living area and a well-balanced design, this floor plan delivers a smart combination of comfort, simplicity, and timeless appeal, making it an excellent foundation for a personalized custom home.