

*Plan may show available options and upgrades. Click to zoom. Scroll to zoom. Drag to pan.
Your Custom Home Floor Plan
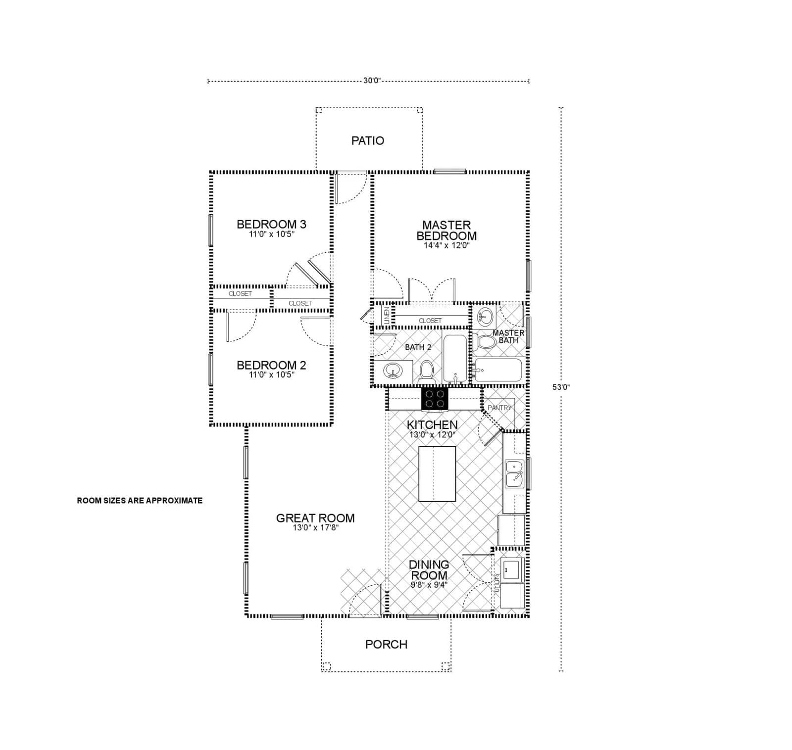
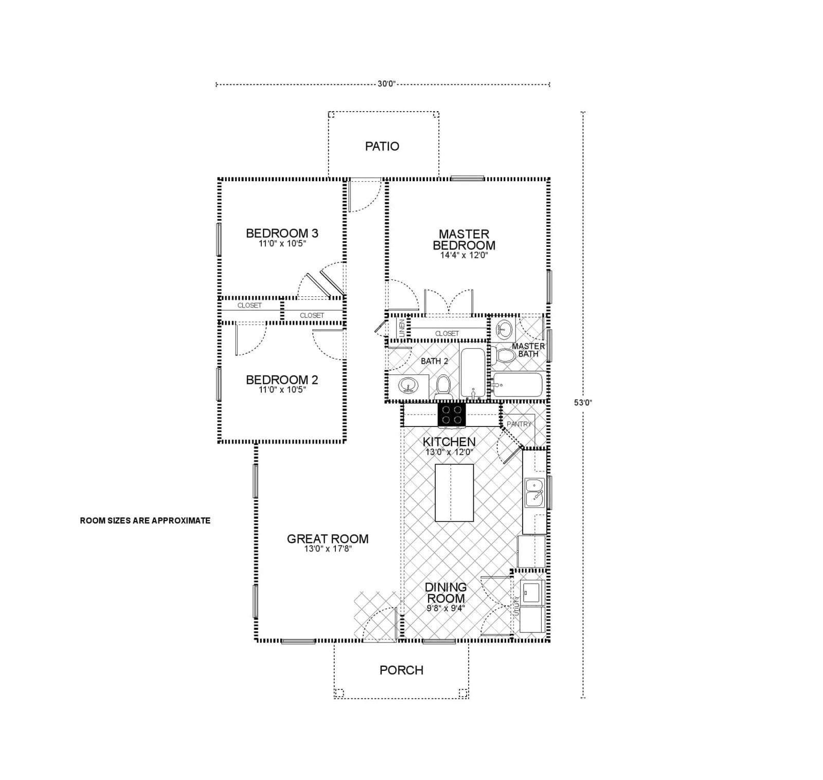
Henderson A Floor Plan
3 Beds
2 Baths
1,200 Sq Ft
$0 Down - No Payments During Construction*
*With approved credit. No traditional construction loan required.
The Henderson-A floor plan offers a streamlined and comfortable living experience, spreading across 1200 square feet. This home is perfectly suited for those who value both cozy living and efficient use of space.
Entering the home, the great room serves as the central hub, with a generous area of 13’0″ by 17’8″, ideal for family activities and entertainment. Adjacent to this space is the dining room, providing a pleasant 9’8″ by 9’4″ area for meals and gatherings. The kitchen, with dimensions of 13’0″ by 12’0″, is smartly designed to be both functional and aesthetically pleasing, featuring sufficient space for meal preparation and storage.
The master bedroom, located for privacy, is a comfortable retreat with a size of 14’4″ by 12’0″, complete with an adjoining master bath for convenience and ease. Two additional bedrooms, each measuring 11’0″ by 10’5″, offer ample space for family, guests, or a home office, each with easy access to the second full bathroom.
The home’s thoughtful design includes a patio, which extends the living space outdoors, perfect for relaxation or entertaining in the open air. With a total under-roof area of 1320 square feet, including the porch and patio, the Henderson-A floor plan presents a balance of inviting communal areas and private spaces, making it an attractive choice for those seeking a practical and charming home.
Living Area
1,200 sq ft
Bedrooms
3
Bathrooms
2
Stories
1
Speak To Your New Custom Home Builder Today!
25+
Years Experience
3,000+
Homes Built
5
Office Locations
A+
BBB Rating
Make It Yours
Customize the Henderson A
Every floor plan is a starting point, not a box. Work directly with our design team to personalize every detail of the Henderson A to fit your land, your family, and your lifestyle - at a price that's clear from day one.
Cabinet styles and finishes
Flooring throughout
Countertops and backsplashes
Exterior colors and materials
Structural layout changes
Fixtures and hardware
Ceiling treatments
Porch and outdoor living
How It Works
Build the Henderson A in 5 Simple Steps
From free site evaluation to move-in day. One team, one price, one beautiful home.
01
Free Site Evaluation
We assess your land for build-readiness including soil, utilities, and access.
02
Choose Your Plan
Select the Henderson A or customize it. Bring your own plan too.
03
Get Clear Pricing
Transparent pricing with no hidden fees or surprises.
04
Build Begins
Our experienced team breaks ground with one dedicated point of contact.
05
Move In
Walk through your finished dream home and start making memories.
Take the Next Step
Get Details for the Henderson A
Tell us where you want to build and we'll match you with your local team.
Mortgage Calculator
*Estimate only. Does not include taxes and insurance. WAC.
$
$
%
Estimated Monthly Payment
$2,213/mo
Common Questions
Henderson A Floor Plan FAQ
Yes. Every Southwest Homes floor plan is a starting point. Work directly with our design team to personalize cabinet finishes, flooring, countertops, fixtures, exterior colors, and structural options. We adapt the Henderson A to fit your land, your family, and your lifestyle.
No - traditional construction loans require you to pay interest. We work with lenders who offer construction-to-permanent financing that simplifies this - often with $0 down and no payments and no interest until the build is complete. *WAC
Pricing depends on the floor plan, location, lot conditions, and customizations you choose. We provide transparent pricing with no hidden fees. Contact us for a personalized quote based on your specific plan and land.
Every home is different - the time frame changes from permit approval to move-in, depending on the plan size, site conditions, local permitting timelines, and even weather conditions. Your project manager will give you a specific schedule during the planning phase.
We typically serve a 100-mile radius around each of our offices in San Antonio, Corpus Christi, Canton TX, and Springdale AR. If you're unsure whether your land is in our service area, call your nearest office and we'll let you know right away.
Yes. Southwest Homes offers a Bring Your Own Plan option. If you have a design you love, our team can review it and provide pricing to build it on your land. Learn more about Bring Your Own Plan.
Ready to Build the Henderson A on Your Land?
No construction loan required. Transparent pricing. Free site evaluation. 25+ years and 3,000+ homes built.



