
San Marcos C
4 Bed 2 Bath 1,360 sqft
View Plan

*Plan may show available options and upgrades. Click to zoom. Scroll to zoom. Drag to pan.
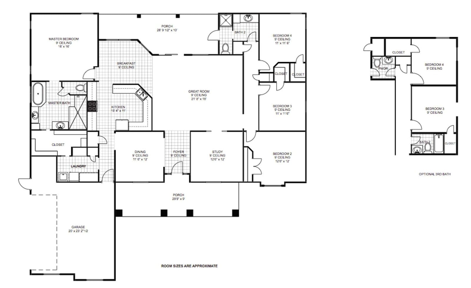
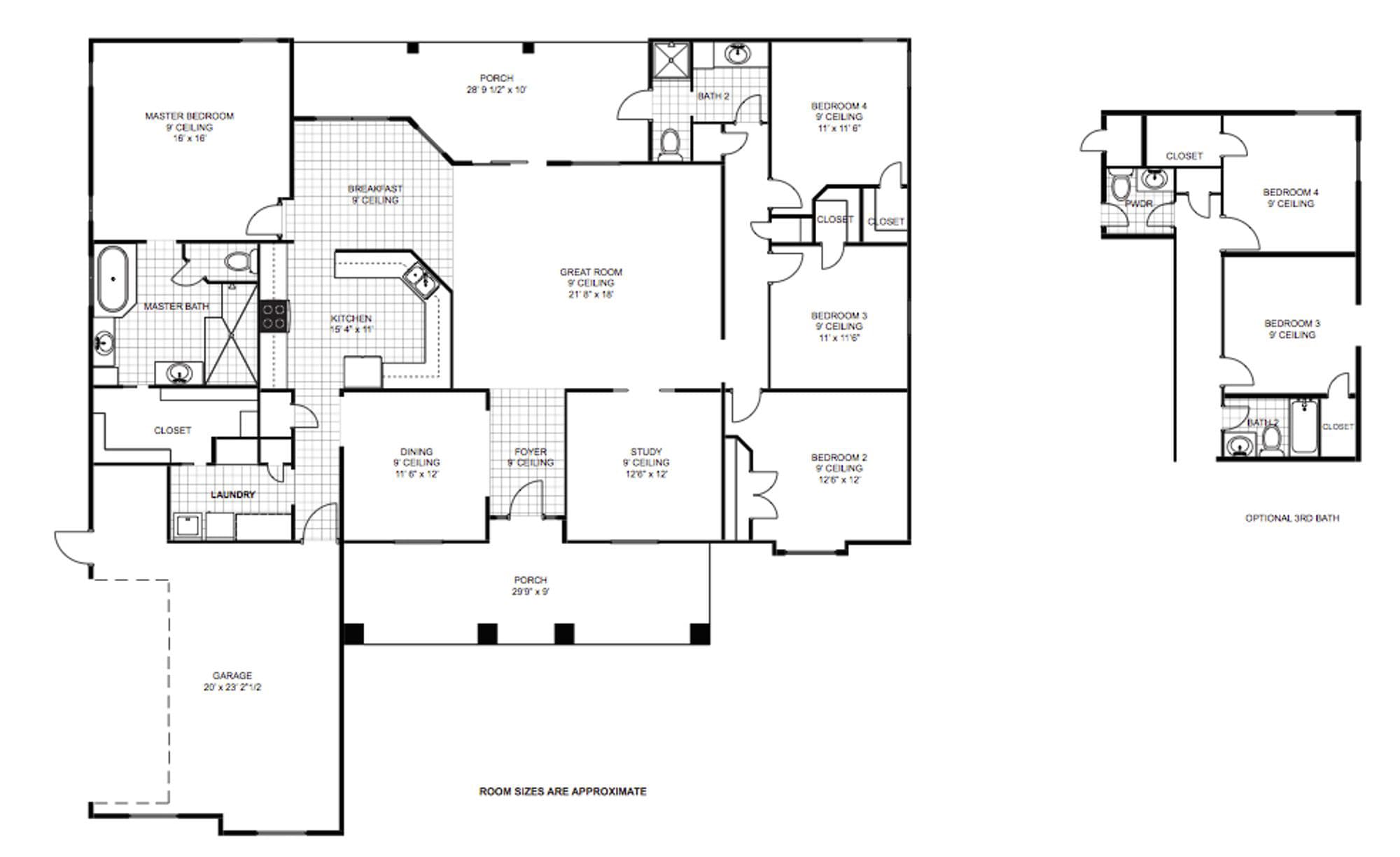
The Lockhart A floor plan is a striking and modern design that offers both space and style, making it an excellent choice for those looking to build a custom home that combines luxury and practicality. The home begins with a welcoming front porch that leads to a spacious foyer, setting the tone for the open and inviting design.
The great room features a 10-foot ceiling and serves as the central hub of the home, perfect for gatherings and relaxation. The kitchen is designed with the home chef in mind, featuring a walk-in pantry and an island that opens up to a breakfast nook, creating a seamless flow for cooking and dining.
The master suite is a tranquil oasis, boasting a coffered ceiling, a spacious master bath with dual vanities, a separate shower, a garden tub, and a generous walk-in closet. The plan also includes two additional bedrooms with easy access to a full bath, ensuring comfort for family and guests.
A study adds versatility to the floor plan, making it suitable for a home office, library, or guest room. The utility room is conveniently located for household management, and the two-car garage provides ample space for vehicles and storage.
With a living area totaling 2,250 square feet, the Lockhart A floor plan is thoughtfully designed to provide a perfect balance of shared and private spaces, making it an excellent choice for those seeking a stylish and functional custom-built home.
Every floor plan is a starting point, not a box. Work directly with our design team to personalize every detail of the Lockhart A to fit your land, your family, and your lifestyle - at a price that's clear from day one.
From free site evaluation to move-in day. One team, one price, one beautiful home.
We assess your land for build-readiness including soil, utilities, and access.
Select the Lockhart A or customize it. Bring your own plan too.
Transparent pricing with no hidden fees or surprises.
Our experienced team breaks ground with one dedicated point of contact.
Walk through your finished dream home and start making memories.
Tell us where you want to build and we'll match you with your local team.
*Estimate only. Does not include taxes and insurance. WAC.
No construction loan required. Transparent pricing. Free site evaluation. 25+ years and 3,000+ homes built.
Fill out the form below and your local builder rep will send you full pricing and specs.