

*Plan may show available options and upgrades. Click to zoom. Scroll to zoom. Drag to pan.
Your Custom Home Floor Plan
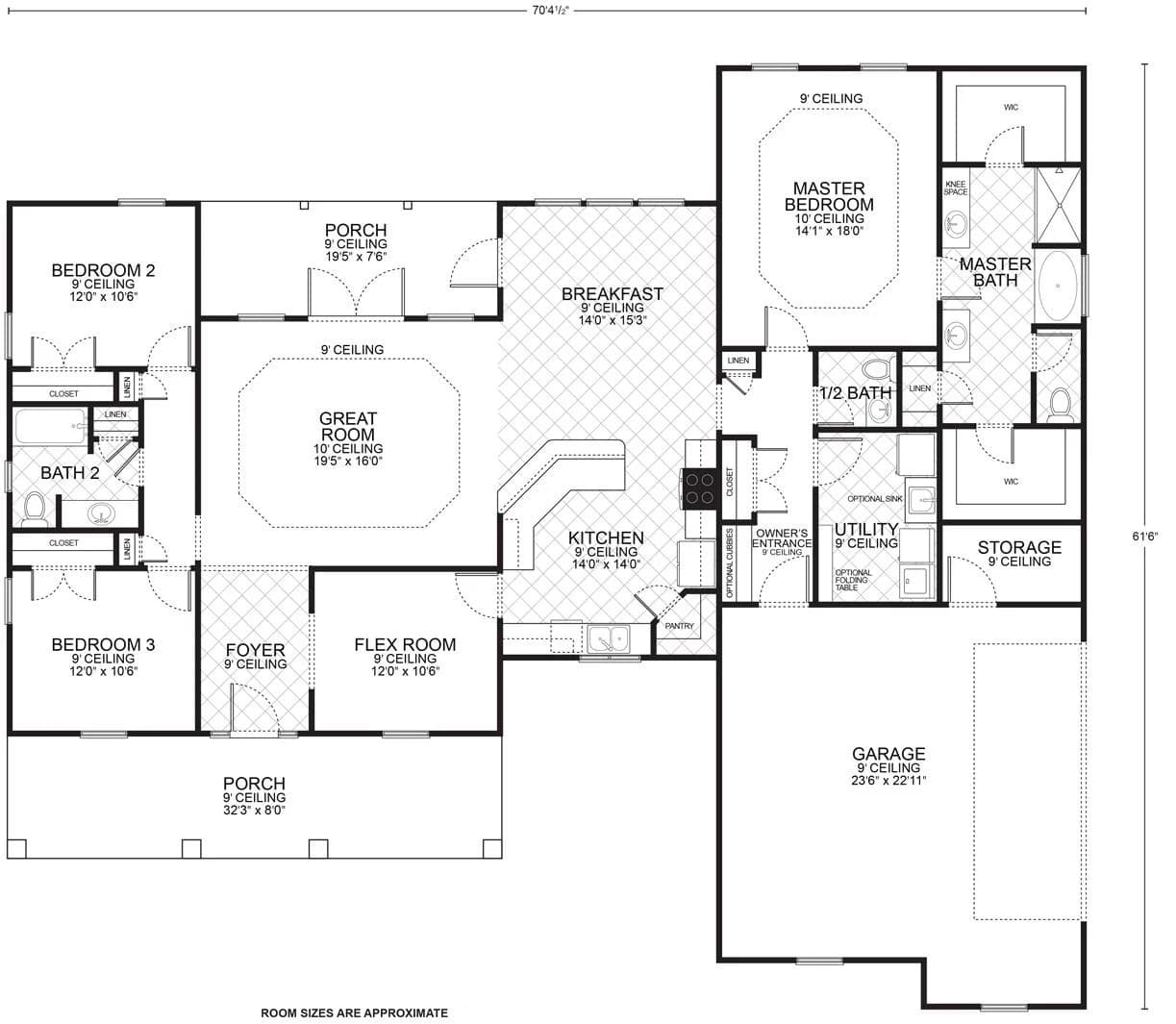
Hillcrest B Floor Plan
3 Beds
2.5 Baths
2,200 Sq Ft
2 Cars
$0 Down - No Payments During Construction*
*With approved credit. No traditional construction loan required.
The Hillcrest B floor plan seamlessly combines modern luxury with everyday functionality, making it an ideal foundation for your custom home. The design starts with a welcoming front porch, leading into a foyer that opens into an expansive great room with a 9-foot ceiling, providing a perfect blend of space and comfort for family living and entertaining.
The heart of the home, the kitchen, boasts ample counter space, modern appliances, a pantry, and an owner’s entrance, all designed for culinary efficiency. It adjoins a cozy breakfast nook that leads out to a back porch, offering a delightful space for meals and relaxation. The formal dining room is conveniently positioned for easy serving from the kitchen, perfect for hosting dinner parties.
The master bedroom is a tranquil retreat, featuring a lofty 10-foot ceiling and an en-suite master bath with dual vanities, a separate shower, and a large walk-in closet. Additional bedrooms are thoughtfully placed to ensure privacy and are served by a full bathroom, with a flex room providing versatility as a guest room, home office, or media room.
A utility room with optional built-in storage keeps daily chores organized, and the adjacent storage area ensures the home remains clutter-free. With an overall living area of 2,200 square feet, the Hillcrest B offers a generous space that can be tailored to your preferences, creating a home that is as inviting as it is functional.
Living Area
2,200 sq ft
Bedrooms
3
Bathrooms
2.5
Stories
1
Cars
2
Speak To Your New Custom Home Builder Today!
25+
Years Experience
3,000+
Homes Built
5
Office Locations
A+
BBB Rating
Make It Yours
Customize the Hillcrest B
Every floor plan is a starting point, not a box. Work directly with our design team to personalize every detail of the Hillcrest B to fit your land, your family, and your lifestyle - at a price that's clear from day one.
Cabinet styles and finishes
Flooring throughout
Countertops and backsplashes
Exterior colors and materials
Structural layout changes
Fixtures and hardware
Ceiling treatments
Porch and outdoor living
How It Works
Build the Hillcrest B in 5 Simple Steps
From free site evaluation to move-in day. One team, one price, one beautiful home.
01
Free Site Evaluation
We assess your land for build-readiness including soil, utilities, and access.
02
Choose Your Plan
Select the Hillcrest B or customize it. Bring your own plan too.
03
Get Clear Pricing
Transparent pricing with no hidden fees or surprises.
04
Build Begins
Our experienced team breaks ground with one dedicated point of contact.
05
Move In
Walk through your finished dream home and start making memories.
Take the Next Step
Get Details for the Hillcrest B
Tell us where you want to build and we'll match you with your local team.
Mortgage Calculator
*Estimate only. Does not include taxes and insurance. WAC.
$
$
%
Estimated Monthly Payment
$2,213/mo
Common Questions
Hillcrest B Floor Plan FAQ
Yes. Every Southwest Homes floor plan is a starting point. Work directly with our design team to personalize cabinet finishes, flooring, countertops, fixtures, exterior colors, and structural options. We adapt the Hillcrest B to fit your land, your family, and your lifestyle.
No - traditional construction loans require you to pay interest. We work with lenders who offer construction-to-permanent financing that simplifies this - often with $0 down and no payments and no interest until the build is complete. *WAC
Pricing depends on the floor plan, location, lot conditions, and customizations you choose. We provide transparent pricing with no hidden fees. Contact us for a personalized quote based on your specific plan and land.
Every home is different - the time frame changes from permit approval to move-in, depending on the plan size, site conditions, local permitting timelines, and even weather conditions. Your project manager will give you a specific schedule during the planning phase.
We typically serve a 100-mile radius around each of our offices in San Antonio, Corpus Christi, Canton TX, and Springdale AR. If you're unsure whether your land is in our service area, call your nearest office and we'll let you know right away.
Yes. Southwest Homes offers a Bring Your Own Plan option. If you have a design you love, our team can review it and provide pricing to build it on your land. Learn more about Bring Your Own Plan.
Ready to Build the Hillcrest B on Your Land?
No construction loan required. Transparent pricing. Free site evaluation. 25+ years and 3,000+ homes built.



