Kenadian Floor Plan - 4 Bed / 2.5 Bath / 2,020 Sq Ft

The Kenadian.
Spacious Living,
Designed for You.

2,020 square feet of open-concept living designed for the way your family lives. Customizable inside and out - built on your lot with transparent pricing.

View Floor Plan
Ask About Our $0 Down Custom Home Financing. *WAC

Build the Kenadian
on Your Land
Starting at $0 Down

Transparent pricing, no hidden fees, and no payments during construction. 25+ years and 3,000+ homes built across Texas and Arkansas.

Learn About Financing
Free Site Evaluation - Start Today

Build On Your Lot
The Kenadian
Custom Built Home

From site evaluation to move-in day in 5 simple steps. One dedicated team, one clear price, one beautiful home.

See Our 5-Step Process
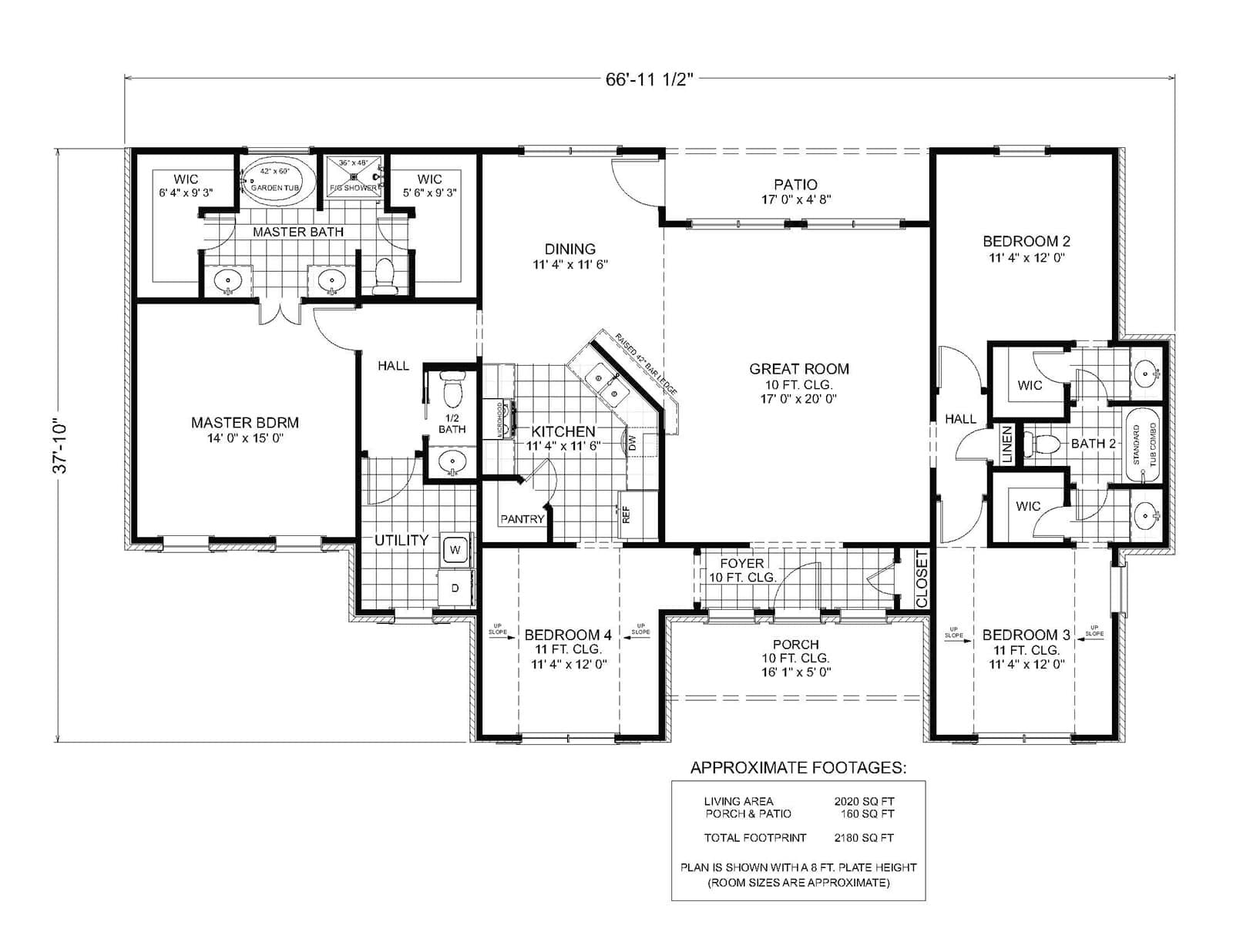
Kenadian custom home floor plan - 4 Bed / 2.5 Bath / 2,020 Sq Ft

*Plan may show available options and upgrades. Click to zoom. Scroll to zoom. Drag to pan.

Your Custom Home Floor Plan

Kenadian Floor Plan

4 Beds
2.5 Baths
2,020 Sq Ft
View All Plans
$0 Down - No Payments During Construction* *With approved credit. No traditional construction loan required.

This expansive floor plan delivers a refined balance of openness, privacy, and thoughtful functionality, making it well-suited for both everyday living and entertaining. At the center of the home, the large great room features impressive ceiling height and generous proportions, creating a bright and inviting space for gathering with family or hosting guests. Its open connection to the dining area and kitchen encourages seamless movement and a natural flow throughout the main living spaces.

The kitchen is designed with efficiency and style in mind, offering ample counter space, a functional layout, and a convenient pantry for storage. Positioned nearby, the dining area provides a comfortable setting for family meals or special occasions, while maintaining easy access to both indoor and outdoor living areas. A covered patio extends the living space outdoors, offering a relaxed setting for dining, entertaining, or enjoying quiet moments outside.

The master suite serves as a private retreat, featuring a spacious bedroom and a well-appointed bath with dual vanities, a soaking tub, a separate shower, and dual walk-in closets for added comfort and organization. Secondary bedrooms are thoughtfully distributed across the home, each offering comfortable dimensions, walk-in closets, and access to full baths, providing privacy for family members or guests. An additional bedroom near the front of the home offers flexibility as a guest room, home office, or multi-purpose space.

Additional highlights include a welcoming foyer, a centrally located utility room, ample storage throughout, and multiple porches that enhance both curb appeal and outdoor enjoyment. With approximately 2,020 square feet of living space and a total footprint of around 2,180 square feet, this floor plan offers a spacious, well-organized layout that combines comfort, versatility, and timeless design, making it an excellent foundation for a personalized custom home.

Living Area 2,020 sq ft
Bedrooms 4
Bathrooms 2.5
Stories 1
Explore Financing Options Download Brochure

Speak To Your New Custom Home Builder Today!

SWH Of San Antonio 4001 N I-35 Frontage Rd New Braunfels, TX 78132 830-626-3030
SWH Of Canton 21774 Interstate 20 Wills Point, TX 75169 903-287-9119
SWH Of Corpus Christi 4250 Five Points Rd Corpus Christi, TX 78410 361-241-6011
SWH Of Springdale 4264 N. Thompson Springdale, AR 72764 479-756-2626
25+
Years Experience
3,000+
Homes Built
5
Office Locations
A+
BBB Rating
Make It Yours

Customize the Kenadian

Every floor plan is a starting point, not a box. Work directly with our design team to personalize every detail of the Kenadian to fit your land, your family, and your lifestyle - at a price that's clear from day one.

Cabinet styles and finishes
Flooring throughout
Countertops and backsplashes
Exterior colors and materials
Structural layout changes
Fixtures and hardware
Ceiling treatments
Porch and outdoor living
How It Works

Build the Kenadian in 5 Simple Steps

From free site evaluation to move-in day. One team, one price, one beautiful home.

01

Free Site Evaluation

We assess your land for build-readiness including soil, utilities, and access.

02

Choose Your Plan

Select the Kenadian or customize it. Bring your own plan too.

03

Get Clear Pricing

Transparent pricing with no hidden fees or surprises.

04

Build Begins

Our experienced team breaks ground with one dedicated point of contact.

05

Move In

Walk through your finished dream home and start making memories.

Take the Next Step

Get Details for the Kenadian

Tell us where you want to build and we'll match you with your local team.

Mortgage Calculator

*Estimate only. Does not include taxes and insurance. WAC.

$
$
%
Estimated Monthly Payment
$2,213/mo
Google Rating
3,000+
Homes Built
$0
Down to Start
Common Questions

Kenadian Floor Plan FAQ

Yes. Every Southwest Homes floor plan is a starting point. Work directly with our design team to personalize cabinet finishes, flooring, countertops, fixtures, exterior colors, and structural options. We adapt the Kenadian to fit your land, your family, and your lifestyle.
No - traditional construction loans require you to pay interest. We work with lenders who offer construction-to-permanent financing that simplifies this - often with $0 down and no payments and no interest until the build is complete. *WAC
Pricing depends on the floor plan, location, lot conditions, and customizations you choose. We provide transparent pricing with no hidden fees. Contact us for a personalized quote based on your specific plan and land.
Every home is different - the time frame changes from permit approval to move-in, depending on the plan size, site conditions, local permitting timelines, and even weather conditions. Your project manager will give you a specific schedule during the planning phase.
We typically serve a 100-mile radius around each of our offices in San Antonio, Corpus Christi, Canton TX, and Springdale AR. If you're unsure whether your land is in our service area, call your nearest office and we'll let you know right away.
Yes. Southwest Homes offers a Bring Your Own Plan option. If you have a design you love, our team can review it and provide pricing to build it on your land. Learn more about Bring Your Own Plan.

Ready to Build the Kenadian on Your Land?

No construction loan required. Transparent pricing. Free site evaluation. 25+ years and 3,000+ homes built.