Floor Plan

*Plan may show available options & upgrades.

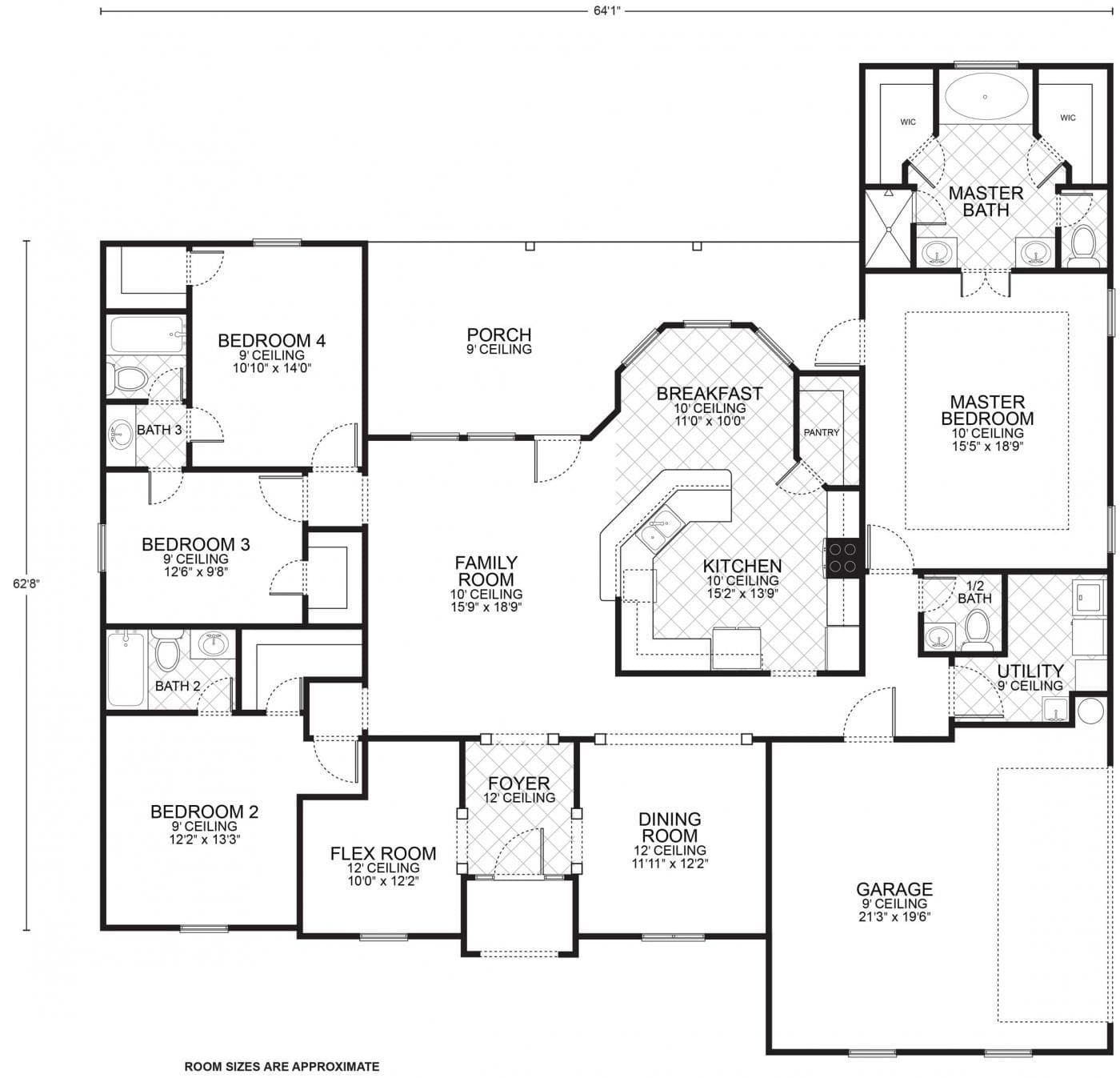
Lafayette - Custom Home Floor Plan
Gallery

The Lafayette floor plan is a beautifully conceived design that artfully balances spaciousness and coziness, making it an ideal blueprint for your custom home. From the welcoming porch, you are led into a high-ceiling foyer that transitions into a vast family room, an ideal space for both lively entertaining and tranquil relaxation with its 10-foot ceiling.

The heart of the home is the kitchen, which is thoughtfully equipped with a pantry and a large island, opening to a bright breakfast area with a 10-foot ceiling for informal dining. The formal dining room adjacent to the kitchen provides an elegant space for special meals and gatherings.

The master suite is a sanctuary of comfort with a luxurious bedroom area, a sophisticated master bath with dual vanities, a large shower, and dual walk-in closets. Three additional bedrooms are well-positioned to afford privacy, with two sharing a Jack-and-Jill bathroom and the fourth with its own adjacent bath, perfect for guests or as a home office.

The utility room provides practicality and convenience, leading to a spacious garage. With a living area of 2,399 square feet, this home is designed to offer a perfect blend of public and private spaces, ensuring a comfortable lifestyle while providing ample room for personalization in your custom-built home.

Mortgage Calculator

The calculated amount is an estimate, with the exact
loan terms determined on an individual basis.
Estimated calculated amount does not include taxes & insurance.
$ 200000
$ 150000
$ 750000
$
[downpayment]/[homeprice]*100
%
([homeprice]-[downpayment])*([interestrate]/100)/12/(1-Math.pow(1+([interestrate]/100)/12,-([loanterm]*12)))
$

Request More Information

Unlock "Build Now" Financing

Get 0% down + No Payment Until Completion
*With Approved Credit

$5,000

Save On Upgrades

LIMITED TIME OFFER - Sign up by 12/31/2025!

Receive $5,000 in Options & Upgrades
Plus: $0 Down + No Payment During Construction *WAC

LIMITED TIME OFFER
Sign up by 12/31/2025!

Receive $5,000 in Options & Upgrades
Plus: $0 Down + No Payment During Construction *WAC

$5,000

Save On Upgrades