

*Plan may show available options and upgrades. Click to zoom. Scroll to zoom. Drag to pan.
Your Custom Home Floor Plan
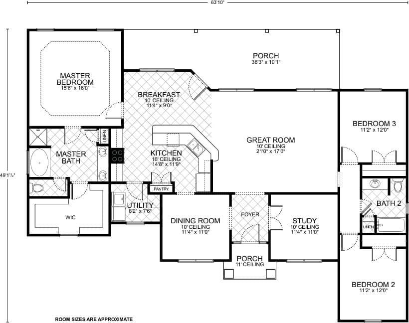
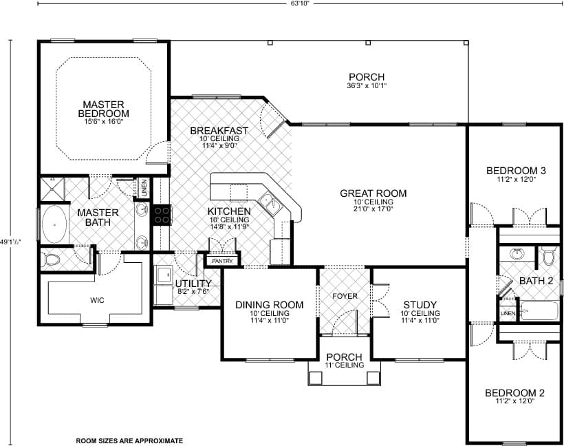
Kendall C Floor Plan
3 Beds
2 Baths
2,036 Sq Ft
$0 Down - No Payments During Construction*
*With approved credit. No traditional construction loan required.
The Kendall C floor plan is a beautifully designed space that combines modern elegance with practical living. It features a spacious great room with a 10-foot ceiling, perfect for family gatherings and entertaining guests. The large kitchen is equipped with a pantry and an island that opens up to the breakfast nook, creating an inviting area for casual dining. A separate formal dining room offers a space for more traditional meals.
The master suite is a luxurious retreat with a walk-in closet and an en-suite bath, providing a private oasis for relaxation. Two additional bedrooms and a study, which can be used as a fourth bedroom, offer flexible space for family or a home office. The utility room and two porches, one at the entrance and another at the back, add to the home’s functionality and charm.
With 2,036 square feet of living space, the Kendall C floor plan is thoughtfully designed to optimize comfort and style, making it an ideal choice for a family looking for a blend of modern design and cozy living.
Living Area
2,036 sq ft
Bedrooms
3
Bathrooms
2
Stories
1
Speak To Your New Custom Home Builder Today!
25+
Years Experience
3,000+
Homes Built
5
Office Locations
A+
BBB Rating
Make It Yours
Customize the Kendall C
Every floor plan is a starting point, not a box. Work directly with our design team to personalize every detail of the Kendall C to fit your land, your family, and your lifestyle - at a price that's clear from day one.
Cabinet styles and finishes
Flooring throughout
Countertops and backsplashes
Exterior colors and materials
Structural layout changes
Fixtures and hardware
Ceiling treatments
Porch and outdoor living
How It Works
Build the Kendall C in 5 Simple Steps
From free site evaluation to move-in day. One team, one price, one beautiful home.
01
Free Site Evaluation
We assess your land for build-readiness including soil, utilities, and access.
02
Choose Your Plan
Select the Kendall C or customize it. Bring your own plan too.
03
Get Clear Pricing
Transparent pricing with no hidden fees or surprises.
04
Build Begins
Our experienced team breaks ground with one dedicated point of contact.
05
Move In
Walk through your finished dream home and start making memories.
Take the Next Step
Get Details for the Kendall C
Tell us where you want to build and we'll match you with your local team.
Mortgage Calculator
*Estimate only. Does not include taxes and insurance. WAC.
$
$
%
Estimated Monthly Payment
$2,213/mo
Common Questions
Kendall C Floor Plan FAQ
Yes. Every Southwest Homes floor plan is a starting point. Work directly with our design team to personalize cabinet finishes, flooring, countertops, fixtures, exterior colors, and structural options. We adapt the Kendall C to fit your land, your family, and your lifestyle.
No - traditional construction loans require you to pay interest. We work with lenders who offer construction-to-permanent financing that simplifies this - often with $0 down and no payments and no interest until the build is complete. *WAC
Pricing depends on the floor plan, location, lot conditions, and customizations you choose. We provide transparent pricing with no hidden fees. Contact us for a personalized quote based on your specific plan and land.
Every home is different - the time frame changes from permit approval to move-in, depending on the plan size, site conditions, local permitting timelines, and even weather conditions. Your project manager will give you a specific schedule during the planning phase.
We typically serve a 100-mile radius around each of our offices in San Antonio, Corpus Christi, Canton TX, and Springdale AR. If you're unsure whether your land is in our service area, call your nearest office and we'll let you know right away.
Yes. Southwest Homes offers a Bring Your Own Plan option. If you have a design you love, our team can review it and provide pricing to build it on your land. Learn more about Bring Your Own Plan.
Ready to Build the Kendall C on Your Land?
No construction loan required. Transparent pricing. Free site evaluation. 25+ years and 3,000+ homes built.



