Floor Plan

*Plan may show available options & upgrades.

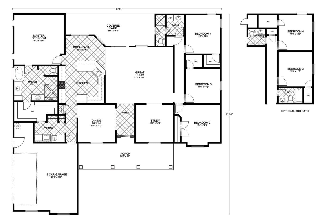
Lockhart C - Custom Home Floor Plan

This inviting floor plan offers a harmonious balance of style, comfort, and practicality, encompassing approximately 2501 square feet of living space designed to cater to both intimate family life and grand entertaining. As you step into the home, you’re greeted by an elegant foyer that leads to a spacious great room with high ceilings, providing a grand area for relaxation and social events.

The heart of this home is the open-concept kitchen, overlooking a cozy breakfast nook and leading to a covered patio, perfect for al fresco dining or morning coffee. The kitchen is designed for both the casual cook and the culinary enthusiast, with ample counter space and a functional layout.

The luxurious master bedroom is a sanctuary, featuring a large walk-in closet and a master bath with dual vanities and a separate shower, offering a spa-like experience. The additional three bedrooms are well-sized and thoughtfully placed to ensure privacy, with the option for a third bathroom, making it ideal for a growing family or hosting guests.

A dedicated study room provides a quiet space for work or study. Practicality is paramount with a substantial utility room and a two-car garage. The outdoor living space, totaling 515 square feet, is a bonus for those who enjoy the outdoors.

With a total under-roof area of 3581 square feet, this home combines functional design with elegance, making it an ideal choice for those seeking a comfortable and luxurious living experience.

Mortgage Calculator

The calculated amount is an estimate, with the exact
loan terms determined on an individual basis.
Estimated calculated amount does not include taxes & insurance.
$ 200000
$ 150000
$ 750000
$
[downpayment]/[homeprice]*100
%
([homeprice]-[downpayment])*([interestrate]/100)/12/(1-Math.pow(1+([interestrate]/100)/12,-([loanterm]*12)))
$

Request More Information

Unlock "Build Now" Financing

Get 0% down + No Payment Until Completion
*With Approved Credit

$5,000

Save On Upgrades

LIMITED TIME OFFER - Sign up by 12/31/2025!

Receive $5,000 in Options & Upgrades
Plus: $0 Down + No Payment During Construction *WAC

LIMITED TIME OFFER
Sign up by 12/31/2025!

Receive $5,000 in Options & Upgrades
Plus: $0 Down + No Payment During Construction *WAC

$5,000

Save On Upgrades